Aller au contenu principal
Retour à la recherche

Maison 8 pièces, 205 m2

Réf. : VM3004-14097
Dernière mise à jour de l’annonce : 22/04/2026

Vente

975 840 € (Honoraires de négociation inclus)
930 000 € (Prix net vendeur)
Montant des honoraires : 45 840 €
Pourcentage des honoraires : 5 %
Honoraires à la charge de l'acquéreur
14510 Gonneville-sur-Mer
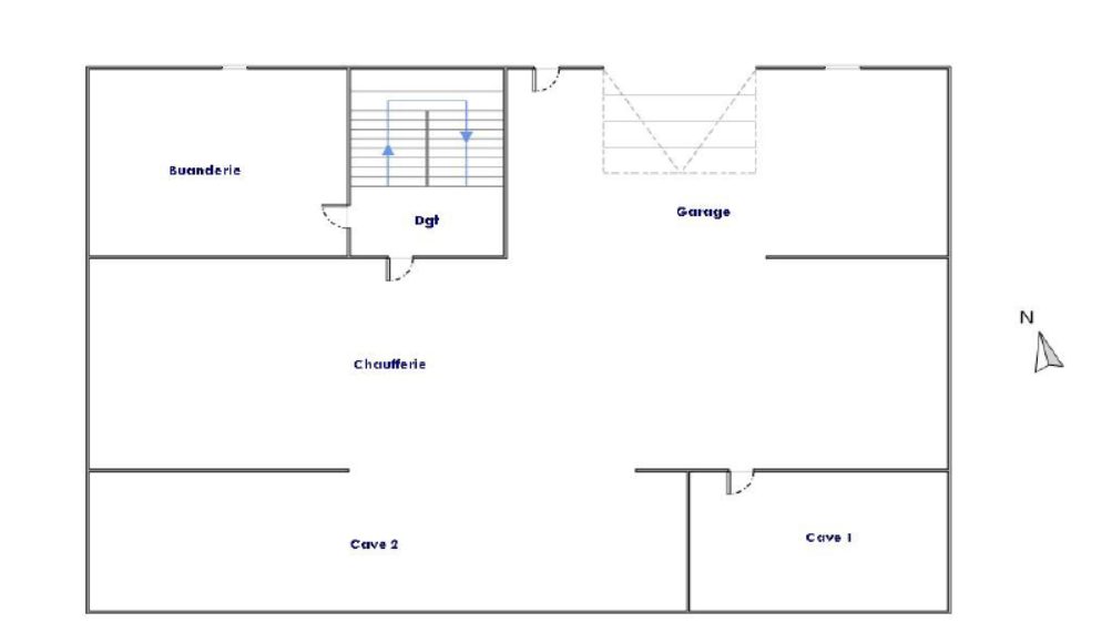
GONNEVILLE SUR MER - Maison de 2002 sur deux niveaux, composée : Au rez-de-chaussée : une entrée desservant un salon séjour de 61.63 m² et son accès terrasse plein Sud, cuisine aménagée-équipée, arrière-cuisine. Un dégagement mène au coin nuit avec un WC séparé et lave-mains, salle de douche et une chambre. A l'étage : un palier pouvant faire office de bureau offre quatre chambres dont une avec dressing, WC séparé et une salle de bains-douche. Nombreuses prestations : aspiration centralisée, volets électriques, fenêtres oscillo battant partout, alarme... Sous-sol complet comprenant : buanderie, garage trois places, deux pièces borgnes et atelier. Sur 6 860 m² de terrain clos avec portail motorisé, vue sur les pâtures vallonnées, dans une impasse sans nuisance. Nous aimons son environnement et ses prestations. Les informations sur les risques auxquels ce bien est exposé sont disponibles sur le site Géorisques : georisques.gouv.fr

Général

Nombre de pièces : 8
Nombre de chambres : 5
Surface :  205 m2
Surface Carrez :  205 m2
Superficie : 6 860 m2
Etat : Bon
Nombre de niveaux : 1
Exposition :  Sud

Bilan énergétique

Date du diagnostic :  24-02-2026
DPE
Logement économe
116 kwh/m²/an
Logement énergivore
GES
Faible émission de GES
31 kg CO₂/m²/an
Forte émission de GES

Depuis le 1er juillet 2021, c’est la plus mauvaise des deux performances (DPE ou GES) qui est retenue au final.

Équipements

Nombre de salles de bain : 1
Cuisine : Oui
Terrasse : Oui
Stationnement : Oui

Conditions de vente

Prix HNI :  975 840 €
(honoraires de négociation inclus)
Prix net vendeur :  930 000 €
Honoraires :  45 840 € (Montant des honoraires de négociation)
Pourcentage d'honoraires :  5 %
Type d'honoraires :  À la charge de l'acquéreur

Contact

Adresse : 42 Rue Hamelin
Code postal :  14130
Ville :  PONT L EVEQUE